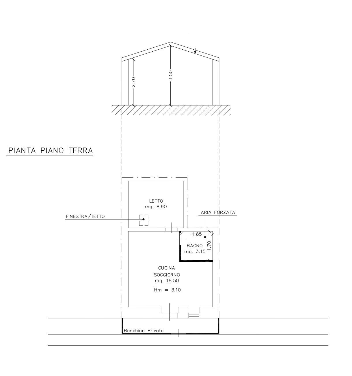
In Pozzallo, only 500 metres from the sea, we are pleased to offer for sale a delightful detached house of approximately 45 sqm—perfect for those looking to enjoy the beauty of Sicily’s stunning beaches within walking distance, or for investors seeking a high-yield opportunity.
The property is set on a single level and welcomes you with a charming, private, gated veranda—ideal for relaxing outdoor moments. Inside, you’ll find a bright open-plan living area with a fully integrated kitchen, thoughtfully designed to maximise space, comfort, and functionality. The sleeping area features a comfortable double bedroom and a bathroom.
The location is one of the property’s key strengths: within just a few minutes’ walk, you can reach the seafront promenade, local amenities, and the town’s main attractions, allowing you to fully experience the authentic and vibrant atmosphere of Pozzallo without the need for a car.
This property represents an excellent solution as a holiday home, pied-à-terre, or rental investment, thanks to the strong demand in this popular seaside destination.











