Set within one of the most authentic and unspoiled areas of south-eastern Sicily, just minutes from the Vendicari Nature Reserve and the stunning Baroque town of Noto, this newly built villa (2025) perfectly blends contemporary elegance with the Mediterranean landscape.
Surrounded by approximately 5,000 sqm of land, the property spans حوالي 220 sqm, offering bright, spacious interiors seamlessly connected with the surrounding environment. Clean, modern architectural lines harmonize beautifully with nature, while large panoramic windows enhance natural light and provide charming views over the sea and Mediterranean vegetation.
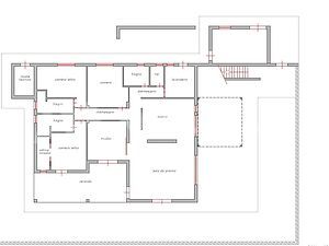
The villa is laid out on a single level and designed to ensure comfort, functionality, and privacy. The living area features a generous open-plan living room with kitchen, complemented by a second, more private lounge ideal as a relaxation area.
The sleeping area includes a refined master suite with en-suite bathroom and walk-in closet, two additional bedrooms, and two further bathrooms, one of which is en suite. The property is completed by a utility room, a spacious laundry area, and an additional independent space already prepared to be converted into a guesthouse.
Outside, a large covered veranda opens onto the garden, creating a seamless indoor-outdoor flow and enhancing the overall living experience. There is also the possibility to build a swimming pool, adding further value and creating a private oasis for relaxation.
On the upper level, accessible externally, a stunning panoramic terrace offers breathtaking views over one of Sicily’s most exclusive and captivating coastal areas
Features & Specifications (Energy Class A4):
- Latest-generation 6 kW photovoltaic system with 10 kW battery storage
- Solar thermal system
- Water softener
- Pre-installation for alarm system
- Air conditioning (split units)
An ideal property both as a prestigious private residence and as a high-value investment in one of Sicily’s most sought-after locations.































