A Noto, proponiamo in vendita un’elegantissima villa di nuovissima costruzione e mai abitata, di circa 300 mq, realizzata con materiali di altissimo pregio e dotata di ogni comfort moderno.
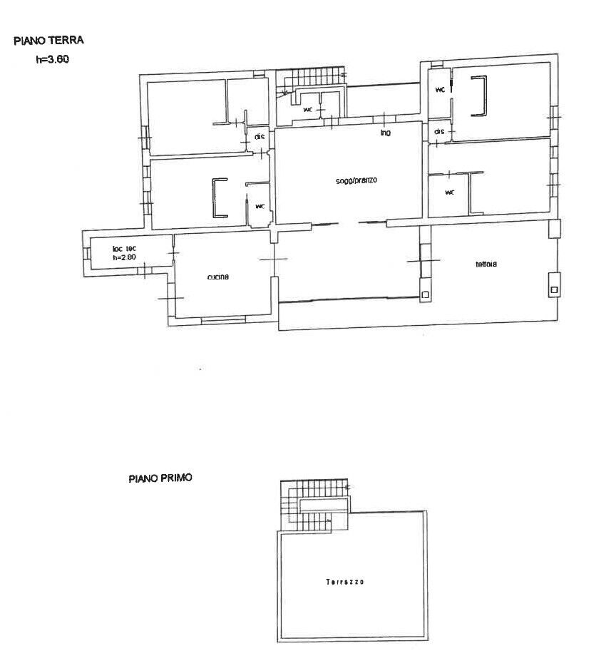
L’immobile, si sviluppa al piano terra con una luminosa zona living composta da soggiorno e sala da pranzo con affaccio diretto sulla piscina, una cucina moderna completa di piano a induzione, cappa aspirante ed elettrodomestici di ultima generazione, oltre a quattro spaziose camere matrimoniali, ciascuna con cabina armadio e bagno en suite, pensate per garantire il massimo della privacy e del comfort.
La villa è impreziosita da un’ampia veranda al piano terra, ideale per momenti conviviali e di relax all’aria aperta, e da un terrazzo con suggestiva vista panoramica.
All’esterno, una splendida piscina con zona solarium crea un ambiente esclusivo, perfetto per vivere appieno la bellezza del contesto.
Ogni ambiente è stato rifinito con materiali di altissima qualità, con grande attenzione ai dettagli e al design contemporaneo.
Dotata di impianti di ultima generazione: impianto di climatizzazione, solare termico, sistema di allarme, infissi a taglio termico, fibra internet e pozzo trivellato.
Completa la proprietà un terreno di circa 19.000 mq, impreziosito da un uliveto e un mandorleto, che garantiscono privacy, natura e un’atmosfera autenticamente siciliana.































