Immersa nel verde delle campagne iblee, proponiamo in vendita casa singola situata a soli 8 km da Modica Sorda e da Pozzallo, in zona tranquilla e silenziosa, ideale per chi cerca privacy e contatto con la natura.
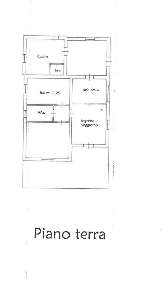
L’immobile, disposto su un unico livello, è composto da 120 mq circa di civile abitazione, in parte già abitabile e circa 200 mq di annessi agricoli, da ristrutturare, con ottime potenzialità (depositi, laboratori, dependance)
La proprietà insiste su un lotto di terreno di circa 1.000 mq, pianeggiante e ben fruibile
Soluzione perfetta sia come residenza principale, sia come immobile da mettere a reddito.































