In the sunny Ragusa countryside, a few km from Ragusa and the renowned Chiaramonte, we offer for sale an ancient stone farmhouse.
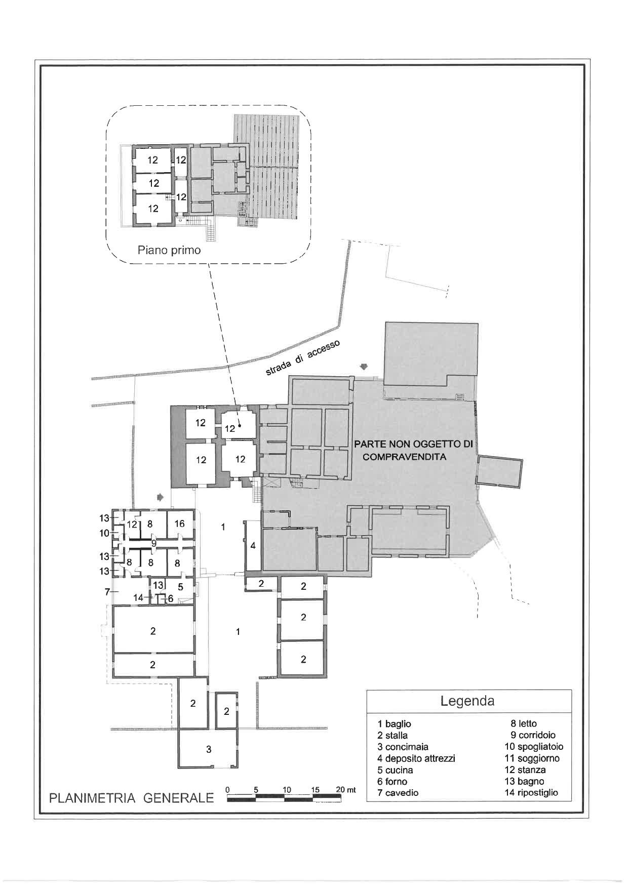
The property is composed of a main building used as a residential building of approximately 150m2, stables for another 400m2 and a collapsing building for another 400m2, on two levels.
The main body, currently habitable, is composed of an entrance with kitchen and dining room, two double bedrooms, one with en-suite bathroom, a small bedroom, a bathroom and a closet. Through internal access you reach the renowned oven room with the typical stone oven still in perfect working order.
The property is completed by approximately 24 hectares of land used for grazing.
















