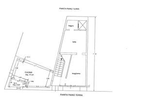
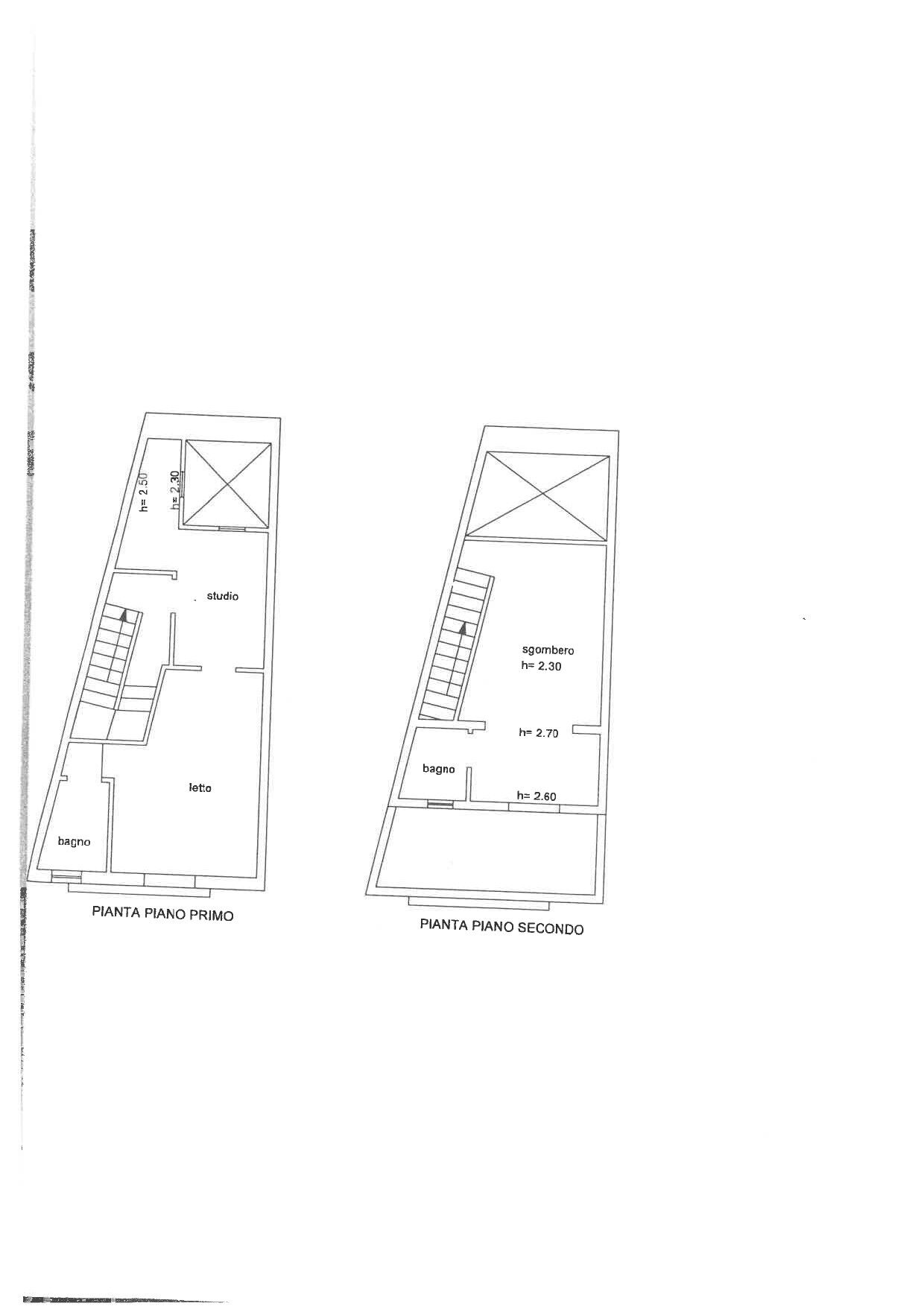
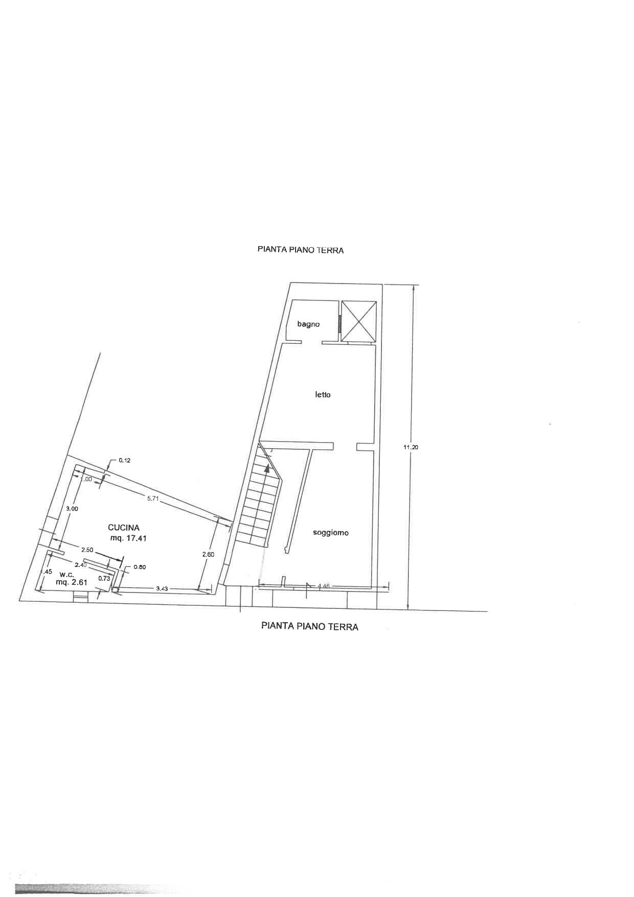
In Pozzallo, just 500 meters from the Pietrenere seafront, in a quiet and well-served area, we offer for sale a detached building of approximately 125 square meters, on three levels.
The property is divided into three independent units, located on the ground, first and second floors.
On the ground floor we find the two-room apartment: with kitchen/living room, double bedroom and en-suite bathroom with window and the studio apartment: with kitchenette, sleeping area and a comfortable bathroom with window.
The duplex apartment on the first and second floors features a large double bedroom with a private balcony, an en suite bathroom with a window, a spacious kitchen/living room, and a habitable terrace.
Ideal solution as an investment.

























