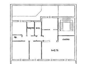
In Pozzallo, 600m from the Pietrenere seafront, we offer for sale a 150m2 apartment on the third floor (without a lift).
The property, close to all the main services, consists of a large entrance hall, a spacious and bright living room with an open-plan kitchen with a peninsula, a study, three double bedrooms, and two bathrooms.
The property includes large balconies/verandas both at the front and at the rear, and a 20 m2 garage at ground level connected to the condominium's stairwell.






























