A pochi minuti dalle spiagge di Santa Maria del Focallo, nel territorio di Ispica, proponiamo in vendita esclusiva una proprietà composta da due ville indipendenti con piscina privata, immerse nella tranquillità della campagna siciliana.
La proprietà si estende su un lotto di circa un ettaro ed è ideale sia come residenza privata sia come investimento per attività ricettiva di charme, grazie alla posizione strategica, a breve distanza dalle località barocche della Val di Noto.
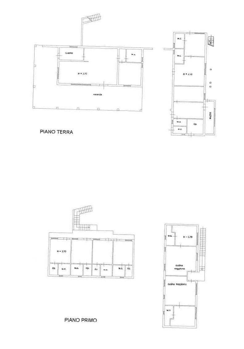
La prima villa, di circa 200 mq, presenta ambienti moderni e luminosi, zona living con cucina, cinque camere da letto tutte con bagno en suite, piscina privata, area solarium e giardino.
La seconda villa, di circa 300 mq, offre ampi spazi interni climatizzati, cinque camere con bagno en suite, cucina attrezzata, cucina esterna con BBQ, piscina, terrazza solarium, area svago, giardino paesaggistico e parcheggio privato recintato.
Entrambe le unità sono dotate di pannelli fotovoltaici.
Soluzione versatile, perfetta per chi desidera vivere la Sicilia in totale privacy o realizzare un investimento ad alta redditività in una delle zone più richieste del turismo internazionale.








































