Nel territorio di Noto, in posizione riservata e accessibile tramite strada privata, proponiamo in vendita una villa indipendente inserita in un contesto naturale di particolare pregio paesaggistico.
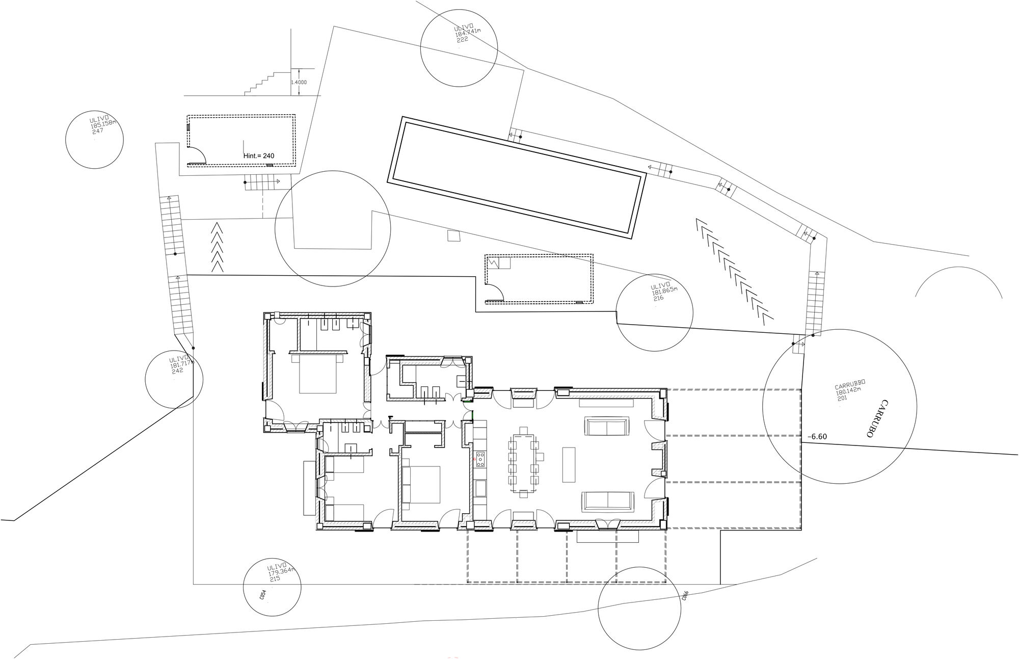
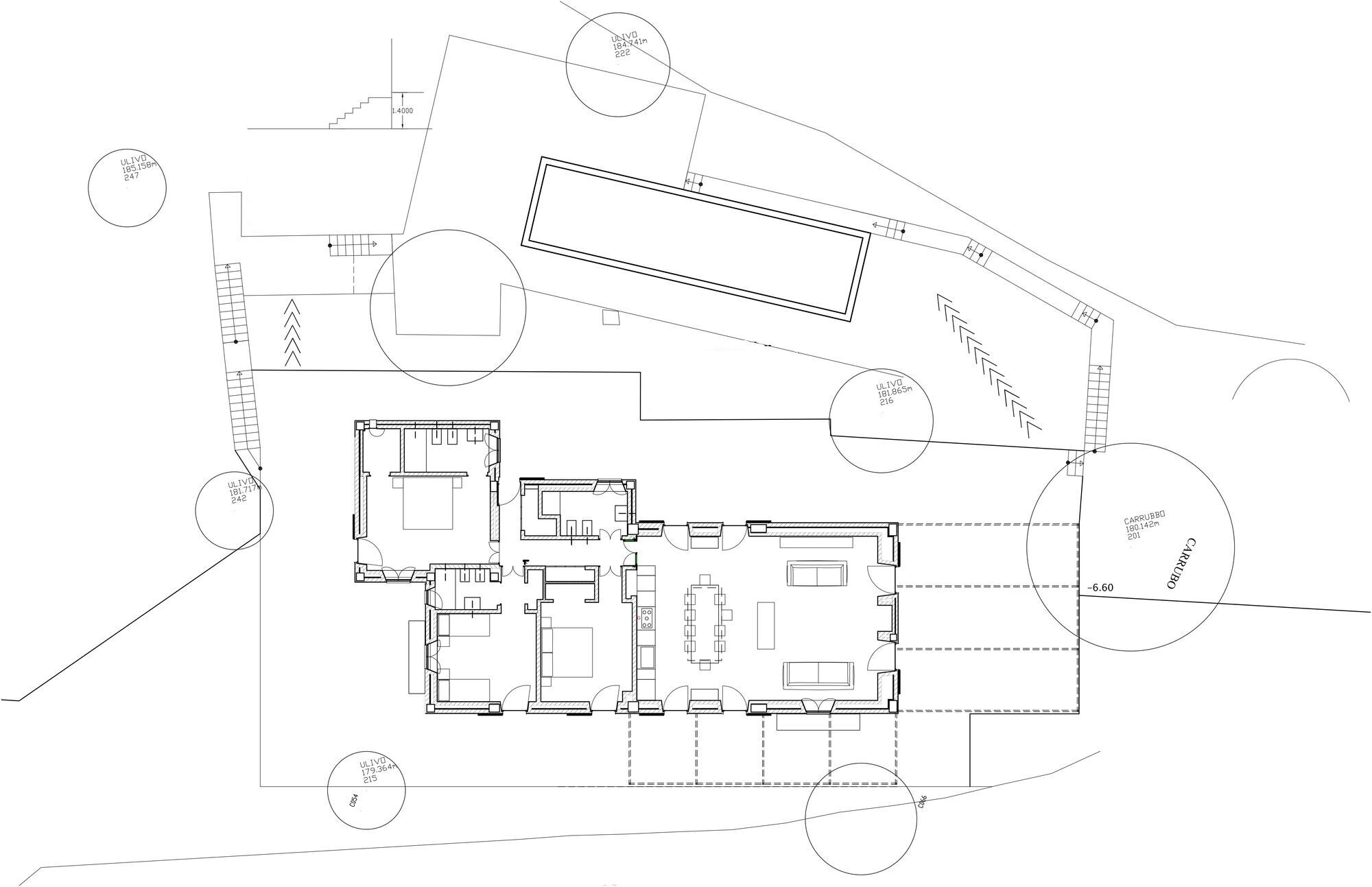
L’immobile, con una superficie interna di circa 180 mq, si sviluppa su un unico livello. L’ingresso conduce a un ampio living doppio con cucina a vista e camino; l’ambiente risulta particolarmente luminoso grazie alle aperture presenti su tre lati, che garantiscono continuità tra interno ed esterno e valorizzano le finiture e i materiali di impronta tipicamente siciliana.
La zona notte è composta da tre camere da letto, tutte dotate di climatizzazione. Due camere dispongono di bagno en suite, mentre un ulteriore bagno serve la terza camera e gli ospiti. Gli ambienti sono distribuiti in modo funzionale, con spazi ben organizzati e facilmente fruibili. Completa l’area interna una lavanderia separata. Il riscaldamento a pavimento assicura comfort abitativo durante tutto l’anno.
All’esterno, la proprietà è arricchita da ampie terrazze panoramiche e da un’area attrezzata con zona barbecue, pensate per l’utilizzo continuativo degli spazi esterni. La piscina, collocata in posizione dominante rispetto al contesto circostante, gode di vista aperta sul paesaggio.
Dal punto di vista impiantistico, l’immobile è dotato di bombolone GPL interrato, impianto fotovoltaico e pozzo artesiano privato, elementi che garantiscono autonomia gestionale ed efficienza.
La soluzione si presta sia come residenza principale sia come abitazione di rappresentanza o investimento nel segmento delle locazioni turistiche di fascia medio-alta, in una delle aree più richieste della Sicilia sud-orientale.


















