A Santa Maria del Focallo, nel territorio di Ispica, a soli 200 metri dal mare, proponiamo in vendita una splendida villa singola di circa 170 mq, ideale sia come residenza privata che come investimento a reddito.
La proprietà si distingue per la presenza di due ingressi carrabili completamente indipendenti: il primo caratterizzato da un lungo vialetto, perfetto come comodo spazio parcheggio, e il secondo con accesso diretto alla strada che conduce alla spiaggia.
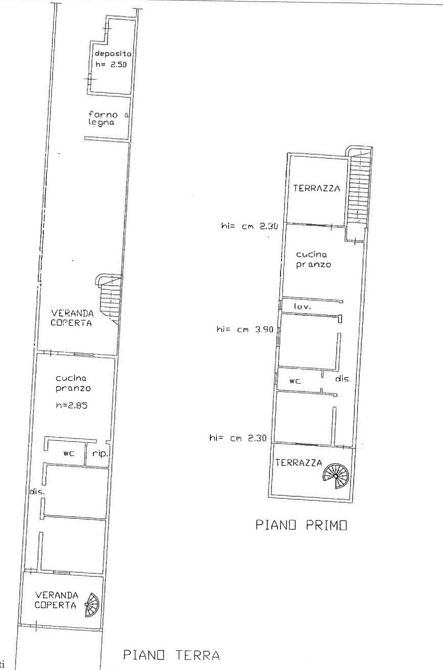
L’immobile si sviluppa su due livelli ed è immediatamente abitabile.
Il piano terra, di circa 105 mq, accoglie una spaziosa cucina-soggiorno, due camere da letto matrimoniali, un bagno e due ampie verande coperte, ideali per vivere gli spazi esterni in totale relax.
Attraverso una scala esterna si accede al primo piano, di circa 65 mq, composto da una luminosa zona cucina-soggiorno con accesso alla terrazza, due camere da letto e due bagni. Completano il livello una seconda terrazza sovrastante la veranda del piano terra, entrambe collegate da una suggestiva scala a chiocciola.
A completare la proprietà troviamo un bagno esterno, un locale deposito e un caratteristico locale forno adiacenti all’abitazione principale, per una superficie complessiva di circa 20 mq.
Soluzione estremamente versatile, perfetta per chi desidera realizzare due unità abitative indipendenti grazie ai doppi ingressi, oppure per chi è alla ricerca di un esclusivo rifugio mediterraneo a pochi passi dal mare.



















