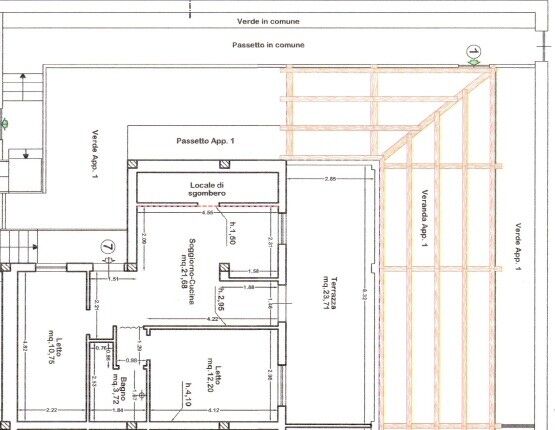
In una delle località più ambite della costa ragusana, Maganuco, proponiamo in vendita un elegante appartamento mansardato in villa di circa 65 mq, soluzione ideale sia come casa vacanze sia come investimento ad alta redditività.
Il vero punto di forza dell’immobile è la veranda abitabile, di circa 25 mq, perfetta per colazioni vista mare, pranzi all’aperto e momenti di puro relax e per godere di una vista aperta e luminosa.
Composizione interna:
- Ampia cucina/soggiorno open space
- una camera matrimoniale,
- Una camera doppia
- Bagno principale
- Ripostiglio/Lavanderia
A completare la proprietà, posto auto riservato all’interno della villa. Soluzione ideale per chi cerca una casa in un contesto signorile, con spazi esterni vivibili e tutti i comfort.











