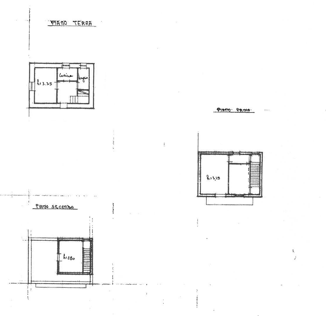
Nel cuore del centro storico di Pozzallo, a soli 500 metri dalla rinomata spiaggia di Pietrenere, proponiamo in vendita una graziosa casa indipendente di circa 90 mq, ideale sia come abitazione principale che come investimento turistico.
L’immobile si sviluppa su tre livelli ed è così composto: al piano terra troviamo un luminoso ingresso che funge da disimpegno, una cucina funzionale, un accogliente soggiorno e un bagno recentemente ristrutturato.
Al primo piano, un comodo corridoio conduce alla zona notte composta da un’ampia camera matrimoniale e una camera singola. Entrambi gli ambienti risultano particolarmente luminosi grazie all’affaccio su un balcone che serve l’intero piano.
All’ultimo livello, la proprietà è completata da una terrazza, ideale per momenti di relax all’aperto.
La posizione strategica, a pochi passi dal mare e da tutti i principali servizi, unita alla funzionale distribuzione degli spazi, rende questa soluzione perfetta sia per chi desidera vivere nel centro cittadino, sia per chi è alla ricerca di un investimento sicuro nel mercato delle locazioni turistiche, in una delle località balneari più apprezzate della Sicilia.












